产品展示
新闻资讯
联系我们contact us
13080820096 全国服务热线:
- 地址:
- 沈阳市于洪区红润路118号
- 邮箱:
- shenyangpuruisen@163.com
- 手机:
- 13080820096
- 电话:
- 13080820096

HL弹性注销联轴器 添加时间:2020-06-29
产品详情
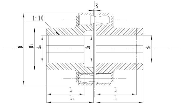
弹性柱销联轴器 JB/ZQ4726—20061 型式、基本参数和主要尺寸
1.1 HL——弹性柱销联轴器
型式、基本参数、外形尺寸和连接尺寸应符合图1、表1的规定

表1
| 型号 |
公称转矩 Tn N·m |
许用转速 [n] r/min |
轴孔直径 d1 ,d2 ,dz ㎜ |
轴孔长度,㎜ |
D ㎜ |
D1 ㎜ |
b ㎜ |
S ㎜ |
转动惯量 kg·㎡ |
质量 kg |
|||
| Y | J,J1,Z | ||||||||||||
| L | L | L1 | |||||||||||
| HL1 | 250 | 8500 | 12 | 32 | 27 | 32 | 90 | 40 | 20 | 2.5 | 0.003 | 2 | |
| 14 | |||||||||||||
| 16 | 42 | 30 | 42 | ||||||||||
| 18 | |||||||||||||
| 19 | |||||||||||||
| 20 | 52 | 38 | 52 | ||||||||||
| 22 | |||||||||||||
| 24 | |||||||||||||
| HL2 | 560 | 6300 | 20 | 52 | 38 | 52 | 120 | 55 | 28 | 2.5 | 0.015 | 5 | |
| 22 | |||||||||||||
| 24 | |||||||||||||
| 25 | 62 | 44 | 62 | ||||||||||
| 28 | |||||||||||||
| 30 | 82 | 60 | 82 | ||||||||||
| 32 | |||||||||||||
| 35 | |||||||||||||
| HL3 | 1250 | 4750 | 30 | 82 | 60 | 82 | 160 | 75 | 36 | 2.5 | 0.15 | 8 | |
| 32 | |||||||||||||
| 35 | |||||||||||||
| 38 | |||||||||||||
| 40 | 112 | 84 | 112 | ||||||||||
| 42 | |||||||||||||
| 45 | |||||||||||||
| 48 | |||||||||||||
| 型号 |
公称转矩 Tn N·m |
许用转速 [n] r/min |
轴孔直径 d1 ,d2 ,dz ㎜ |
轴孔长度,㎜ |
D ㎜ |
D1 ㎜ |
b ㎜ |
S ㎜ |
转动惯量 kg·㎡ |
质量 kg |
|||
| Y | J,J1,Z | ||||||||||||
| L | L | L1 | |||||||||||
| HL4 | 2500 | 3870 | 40 | 112 | 84 | 112 | 195 | 100 | 45 | 3 | 0.08 | 22 | |
| 42 | |||||||||||||
| 45 | |||||||||||||
| 48 | |||||||||||||
| 50 | |||||||||||||
| 55 | |||||||||||||
| 56 | |||||||||||||
| 60 | 142 | 107 | 142 | ||||||||||
| 63 | |||||||||||||
| HL5 | 3150 | 3450 | 50 | 112 | 84 | 112 | 220 | 120 | 45 | 3 | 0.14 | 30 | |
| 55 | |||||||||||||
| 56 | |||||||||||||
| 60 | 142 | 107 | 142 | ||||||||||
| 63 | |||||||||||||
| 65 | |||||||||||||
| 70 | |||||||||||||
| 71 | |||||||||||||
| 75 | |||||||||||||
| HL6 | 6300 | 2720 | 60 | 142 | 107 | 142 | 280 | 140 | 56 | 4 | 0.36 | 53 | |
| 63 | |||||||||||||
| 65 | |||||||||||||
| 70 | |||||||||||||
| 71 | |||||||||||||
| 75 | |||||||||||||
| 80 | 172 | 132 | 172 | ||||||||||
| 85 | |||||||||||||
| HL7 | 11200 | 2360 | 70 | 142 | 107 | 142 | 320 | 170 | 56 | 4 | 1.1 | 58 | |
| 71 | |||||||||||||
| 75 | |||||||||||||
| 80 | 172 | 132 | 172 | ||||||||||
| 85 | |||||||||||||
| 90 | |||||||||||||
| 95 | |||||||||||||
| 100 | 212 | 167 | 212 | ||||||||||
| 110 | |||||||||||||
| HL8 | 16000 | 2120 | 80 | 172 | 132 | 172 | 360 | 200 | 56 | 5 | 1.4 | 119 | |
| 85 | |||||||||||||
| 90 | |||||||||||||
| 95 | |||||||||||||
| 100 | 212 | 167 | 212 | ||||||||||
| 110 | |||||||||||||
| 120 | |||||||||||||
| 125 | |||||||||||||
| HL9 | 22400 | 1850 | 100 | 212 | 167 | 212 | 410 | 230 | 63 | 5 | 3.35 | 197 | |
| 110 | |||||||||||||
| 120 | |||||||||||||
| 125 | |||||||||||||
| 130 | 252 | 202 | 252 | ||||||||||
| 140 | |||||||||||||
| 型号 |
公称转矩 Tn N·m |
许用转速 [n] r/min |
轴孔直径 d1 ,d2 ,dz ㎜ |
轴孔长度,㎜ |
D ㎜ |
D1 ㎜ |
b ㎜ |
S ㎜ |
转动惯量 kg·㎡ |
质量 kg |
|||
| Y | J,J1,Z | ||||||||||||
| L | L | L1 | |||||||||||
| HL10 | 35500 | 1600 | 110 | 212 | 167 | 212 | 480 | 280 | 75 | 6 | 6.8 | 322 | |
| 120 | |||||||||||||
| 125 | |||||||||||||
| 130 | 252 | 202 | 252 | ||||||||||
| 140 | |||||||||||||
| 150 | |||||||||||||
| 160 | 302 | 242 | 302 | ||||||||||
| 170 | |||||||||||||
| 180 | |||||||||||||
| HL11 | 50000 | 1400 | 130 | 252 | 202 | 252 | 540 | 340 | 75 | 6 | 14.1 | 520 | |
| 140 | |||||||||||||
| 150 | |||||||||||||
| 160 | 302 | 242 | 302 | ||||||||||
| 170 | |||||||||||||
| 180 | |||||||||||||
| 190 | 352 | 282 | 352 | ||||||||||
| 200 | |||||||||||||
| 220 | |||||||||||||
| HL12 | 80000 | 1220 | 160 | 302 | 242 | 302 | 630 | 400 | 90 | 7 | 22.5 | 714 | |
| 170 | |||||||||||||
| 180 | |||||||||||||
| 190 | 352 | 282 | 352 | ||||||||||
| 200 | |||||||||||||
| 220 | |||||||||||||
| 240 | 410 | 330 | - | ||||||||||
| 250 | |||||||||||||
| 260 | |||||||||||||
| HL13 | 125000 | 1080 | 190 | 352 | 282 | 352 | 710 | 465 | 100 | 8 | 42.5 | 1057 | |
| 200 | |||||||||||||
| 220 | |||||||||||||
| 240 | 410 | 330 | - | ||||||||||
| 250 | |||||||||||||
| 260 | |||||||||||||
| 280 | 470 | 380 | - | ||||||||||
| 300 | |||||||||||||
| HL14 | 180000 | 950 | 240 | 410 | 330 | - | 800 | 530 | 110 | 8 | 108.2 | 1956 | |
| 250 | |||||||||||||
| 260 | |||||||||||||
| 280 | 470 | 380 | - | ||||||||||
| 300 | |||||||||||||
| 320 | |||||||||||||
| 340 | 550 | 450 | - | ||||||||||
|
注:1 转动惯量与质量是按照轴孔最小径与最大长度计算的近似值。 2 工和环境温度-20~+70℃。 |
|||||||||||||
[上一条]:HLL带制动轮弹性柱销联轴器
[下一条]:ZWZA系列直流电磁鼓式制动器


